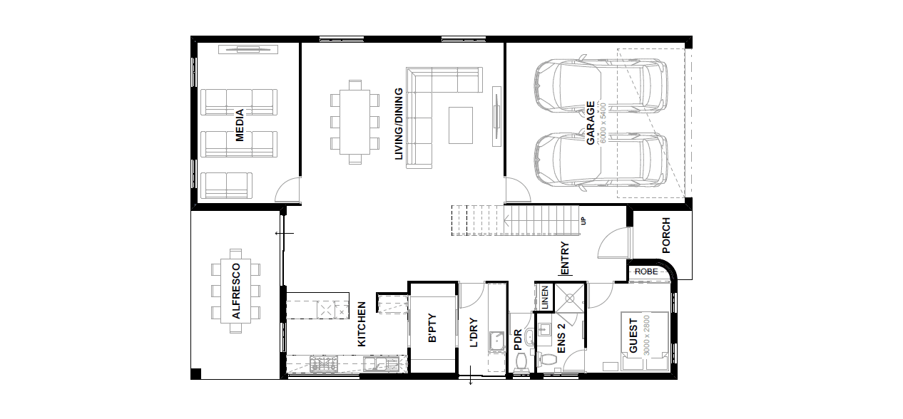
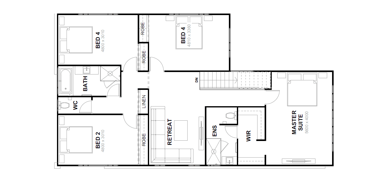
This stunning two-storey home seamlessly blends style and functionality for contemporary living. Designed for growing families, it features 5 generous bedrooms, 3 well-appointed bathrooms, and an additional powder room for convenience. The inclusion of a family retreat and a media room ensures ample space for relaxation, entertainment, and togetherness.
The open-plan kitchen, complete with a butler's pantry, flows effortlessly into the living and alfresco dining areas, creating the perfect backdrop for both casual family meals and hosting guests. A double garage adds practicality, while the modern, spacious layout delivers unmatched comfort and adaptability.
This home is the embodiment of versatile design, ideal for busy families wanting elegance, space, and functionality.
&geometry(270x63))





