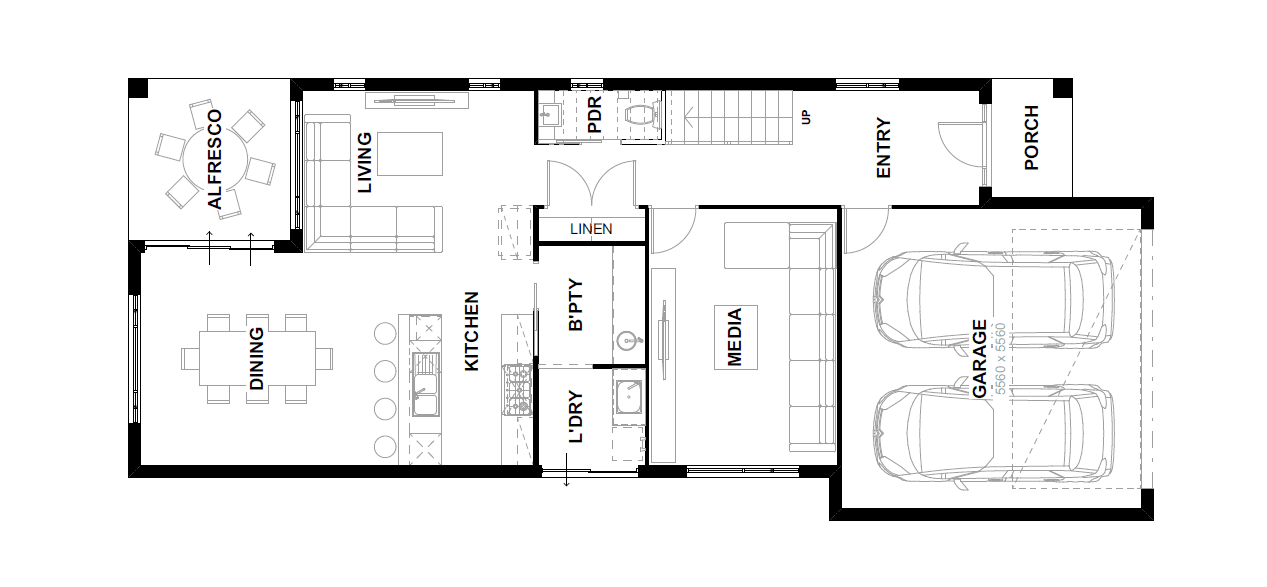
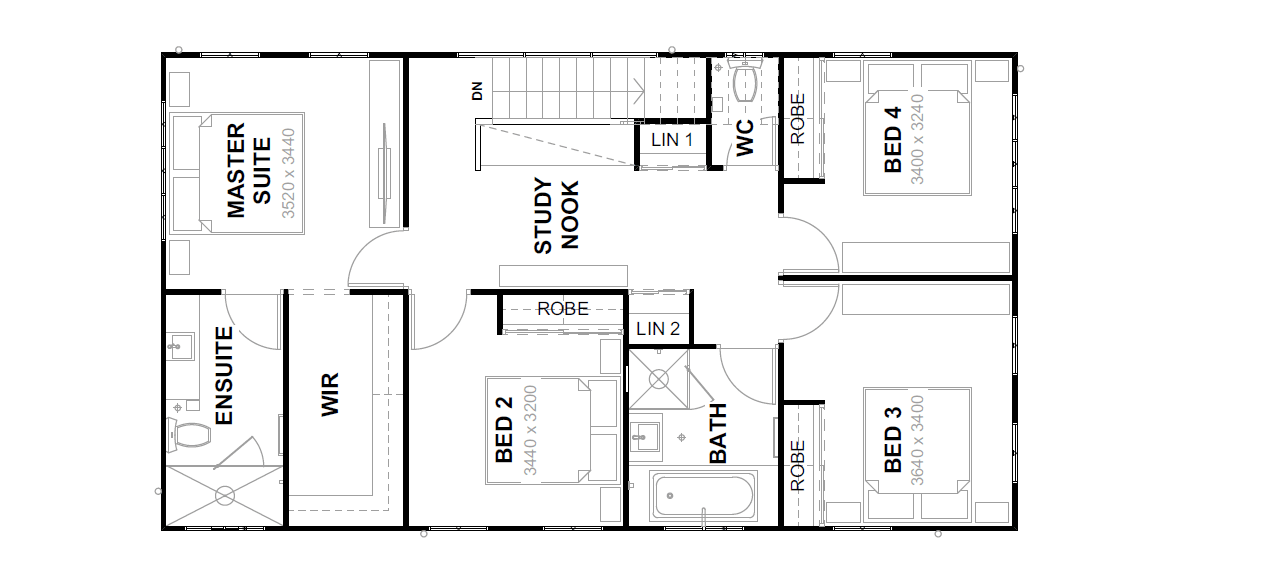
This double-storey home is the ultimate combination of style and practicality. Featuring 4 generous bedrooms, 2 modern bathrooms plus a convenient powder room, and an open-plan layout, it’s designed for contemporary family living. The addition of a media room, study nook, and butler’s pantry provides versatile spaces to suit your lifestyle.
Enjoy seamless indoor-outdoor entertaining with the alfresco dining area, while the double garage offers added convenience. With its spacious design and modern appeal, this home delivers both comfort and functionality for today’s families.
&geometry(270x63))





