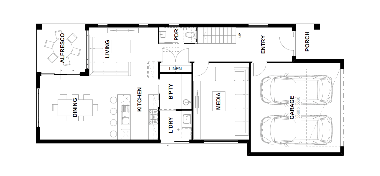
Experience refined living with this double-storey home designed for comfort and functionality. Boasting 4 spacious bedrooms, 2 bathrooms plus a powder room, and a dedicated study nook, this layout perfectly suits the needs of contemporary families. The open-plan living space seamlessly integrates with a stylish alfresco area, while the media room and butler’s pantry add both elegance and practicality. Completing the design is a double garage for convenience, making this home a harmonious blend of style and modern living.
SAND
Modern Family Retreat

4
2.5
2.5
2
Details:
House Area: 232.14 m²
House Width: 8.2 m²
House Length: 12.7 m²
Min Lot Width: 10.5 m²
Ground Floor

Top Floor

Front

Rear

&geometry(270x63))
